オリジナルキッチン(特注)の企画、設計、施工、管理
ユーザーの体に合った、ユーザーのためだけの オリジナルキッチン を金物、パーツから提案します。


オリジナル家具(特注)の企画、設計、施工、管理

 空間に合わせた機能的な家具を提案します。


システムキッチン、家具、木製建具等のゼネコン相手のコンサルタント

図面作成、図面承認活動、代理発注、コストダウン提案
現場管理代行、施工業者手配

年々、ゼネコン単価も厳しく 家具メーカー等に発注しても金額が合わない状況となっております。

ゼネコンもメーカーを通り越して家具工場に直接発注しようという試みが見受けられます。

そんな中で家具工場は物は製作できますが、図面作成、承認、現場管理のノウハウに 欠けている所がほとんどです。このままでは、折角のチャンスも逃してしまいます。
アイワークはそのチャンスを取りこぼす事のないようご協力させて頂きます。

また、遠方から関西エリアの物件を受注されたメーカー様に成り代わり、メーカー様の担当、関西の窓口として業務を代行させて頂きます。頻繁に関西に出向かない分コストダウンにつながります。

現場管理代行 10000円/戸から(図面作成は別途です)

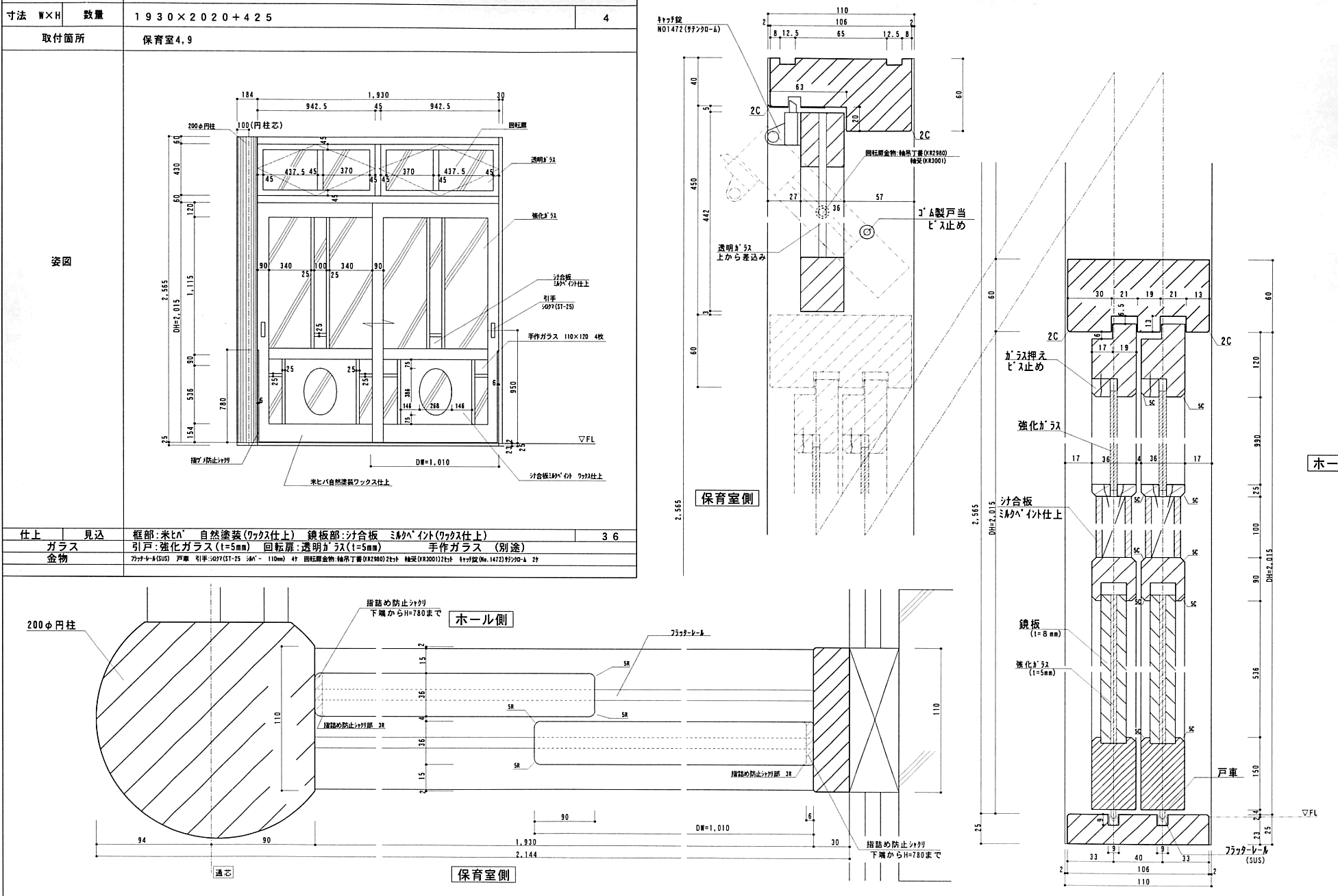
図面作成
〇システムキッチン、家具、木製建具等の詳細図の作成
〇内装工事にまつわる図面作成
〇手書き図面のCADによるトレース(JWC、JWW、AUTOCAD)
古い図面もCADで作成データ化する事によって図面の劣化を気にする事無く、またA1等の大きな図面を収納する場所も不要になります。

図面作成  A3 1枚 5000円から
(1回の訂正は無料。ただし大幅に変更の場合は図面代は別途頂きます)

図面トレース A3 1枚 3000円から

住宅リフォーム
オリジナルキッチン、オリジナル家具をベースにトータル的に住空間を提案させて頂きます。

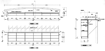
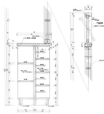
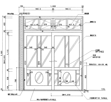
<図面作成例>クリックで拡大します。